【お気軽にお問い合わせ下さい。】
| 建物情報 | |
|---|---|
| 1階 | 59.00m² (17.8坪) |
| 構造 |
|
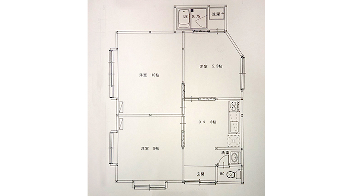
| 間取り | 3DK (洋室10帖/洋室8帖/洋室5.5帖/DK/UB/WC) |
| 築年月 | 平成11年6月 |
| 設備 | キッチン・給湯・トイレ・UB・エアコン2台 |
| 詳細情報 | |
|---|---|
| 敷金 | 1か月 |
| 礼金 | 1か月 |
| 共益費 | 無 |
| 仲介料 | 1か月 |
| 駐車場 | 1台 |
| 取引態様 | 仲介 |
| ライフライン | |
|---|---|
| 電気 | 中部電力 |
| 上水 | 公共 |
| ガス | プロパンガス |
| 学区 | |
| 小学校 | 高森南小学校 |
| 中学校 | 高森中学校 |
| 環境 | |
|
|
| 備考 | |
|
|
| 掲載日 | 2024/7/19 |
| 更新日 | 随時更新 |
